Våkne til panoramautsikt over fjellheimen, innta frokosten i stillongsen, spenn på deg skia på trappa for deretter å skli ned alpinbakken eller bortover langrennsløypene.
Bestill visning* Prisen er oppgitt basert på rimeligste tomtealternativ i Utsikten hyttefelt. Prisene i prospektet er basert på SSB indeks for desember 2021. Hytteleveransen vil indeksreguleres frem til oppstart på byggeplass
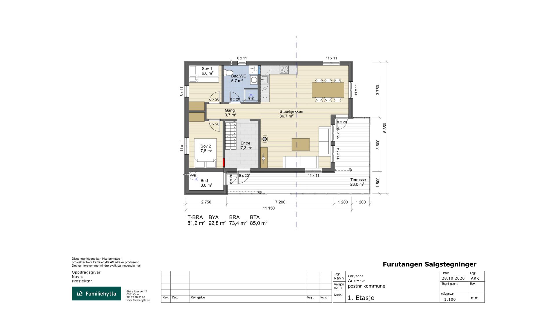
Furutangen er en praktisk og romslig hytte, tilrettelagt for flere generasjoner. Hytta har en funksjonell planløsning og et luftig hemsareal med god takhøyde. Her finnes det rikelig med tumleplass for både store og små.
Alle gulv unntatt entré, badstue, bad og utvendig bod leveres med 25 mm furugulv, isolert og plastet. Dette leveres foliepakket med riktig tørkeprosent.
Alle innervegger er isolert med 7 cm isolasjon. Som kledning leveres det for tradisjon; ubehandlet tømmerpanel i stue (24 mm) og ubehandlet furu skyggepanel (14 mm) i resten av hytta. For trend leveres ubehandlet furu skyggepanel i hele hytta.
Alle himlinger i 1. etasje leveres med 14 mm furu skyggepanel, plastet og isolert i bjelkelag. Etasjeskillet mellom 1. etg og hems leveres med 48×198 og 200 mm isolasjon. I badstue leveres granpanel.
I byggesettet medfølger trapp med rekkverk, både langs trinnene og langs åpning på hems.
Alle innvendige dører leveres i ubehandlet heltre furu (med 3 “speil”) samt vridere i sort utførelse. Inngangsdører er fullisolert med vindu. Terrassedør fra Lillerønning med brystning tilpasset stuevinduer og lås på innsiden. Isolert boddør leveres med panel og dørvrider lik ytterdør. Malte ytterdører leveres som standard uten pristillegg.
Alle bad leveres standard med dobbel veggkledning bestående av rupanel innerst og gips ytterst. Denne løsningen ivaretar gode festemuligheter på alle badets vegger.
Leveres med granpanel for kledning av vegger og tak. Trerister legges direkte på betonggulvet. Materialer til sittebenker og lister følger også med.
Utvendig isolert bod kan leveres til alle modeller som tillegg. Leveres som standard på enkelte kampanjemodeller.
Hems leveres med isolasjon, panel, gulv, skillevegger, trapp og dører. Hemsen har en takhøyde på 1,89 m. ReisverkUtvendig og innvendig reisverk leveres ferdig kappet. Takstolene er dimensjonert for tungt tak (torv) og 650 kg snølast pr. kvm.
Vi kan levere pipe og ovn som tillegg.
Det leveres sorte takrenner i stål med nødvendige oppheng og nedløp.
Leveres med rekkverk i hyttas utførelse. Terrassegulvet leveres med 28 x 120 mm trykkimpregnerte gulvbord.
Leveres standard med sort, type skrå, Isola takshingel samt sort forbordbeslag. Dersom man ønsker torvtak leveres dette med membran mot pristillegg.
Alle yttervegger leveres med 200 mm Rockwool isolasjon, vindsperre, lufting og panel i hyttas utførelse ferdig kappet.
Smårutete isolerglass-vinduer med en U-verdi på 1,2. Vinduene er vakumimpregnerte. Malte vinduer leveres som standard uten pristillegg.

Prisen er med forbehold at leverandør ikke har endret pris. Annonse-pris fra 3 814 000,-*
Ønsker du en hytteprat? Vil du ta turen til Lemonsjøen på tomtevisning?
Vi er lokale utviklere og tilgjengelige året rundt, også digitalt.
Vi tilbyr visning digitalt via video, eller her på Lemonsjøen.
Ta kontakt så svarer vi straks på din forespørsel

Trollhøe er lett å nå og veldig vanskelig å forlate - med panoramautsikt til fem nasjonalparker.
Les mer
Jotunheimen er Lemonsjøen sin nærmeste nabo og storebror - med uendelige muligheter for fantastiske vårskiturer og skikjøring.
Les mer.jpg)
Lemonsjøen er hjertet i et nettverk av preparerte langrennsløyper som strekker seg helt inn til hjertet av Jotunheimen. Må oppleves!
Les mer
Hundekjøring med din egen huskyslede. Fra fartsfylte formiddagsturer til flere døgn i selveste Jotunheimen fra november til mai!
Les mer
Besseggen er en av Norges mest kjente fjellturer. Hvert år vandrer rundt 30 000 turister opp eggen, som byr på fantastisk utsikt.
Les mer
I Jotunheimen kan du kombinere fot- eller sykkelturer med å friste fiskelykken i utallige svært gode ørretvann.
Les mer
I Jotunheimen finner du landets flotteste fjellturer, toppet av Besseggen, Galdhøpiggen og Glittertind.
Les mer
Sykkeleventyr og flytstier på Norges tak!
Les mer
Ingen over, ingen ved siden!
Les mer
Opplev Villa Vågå Hotel - det perfekte valget for et minneverdig opphold i den naturskjønne bygda Vågå.
Les mer
Gjendesheim er vakkert plassert ved de viktigste innfallsportene til den østlige delen av Jotunheimen. Blant erfarne fjellfolk, eventyrlystne nybegynnere, småbarnsfamilier og vennegjenger anses Gjendesheim for å være et utmerket springbrett året rundt.
Les mer
Bessheim ligg like ved Besseggen i Jotunheimen. Her på Bessheim har vi rom, utleigehytter, leilegheiter og matservering.
Les mer
Flotte leiligheter midt på Lemonsjøen. God standard, med alt du trenger for en hyggelig overnatting.
Les mer
Restaurant som byr på eventyrlig seterovernatting og sagnomsust 4- retters «skråpå-tå» meny.
Les mer
Hindsæter er et historisk, lite tømmerhotell fra 1898 midt i naturen i Jotunheimen
Les mer
Lokalmat og kvile for kropp og sjel.
Les mer.webp)
I hjarta av vakre Vågå øvst i Gudbrandsdalen finn du Bokhandel'n Mathus.
Les mer
Kjøkkenet og ølkjelleren på Hindsæter er viden kjent blant matelskere.
Les mer
Alle fjellveier fører til kanelsnurrene i Lom
Les mer
Fjellbygda Heidal ligg øvst i Gudbrandsdalen ved porten til Jotunheimen
Les mer
Lokalmat og kvile
Les mer
Gourmetrestaurant med Arne Brimi i spissen
Les mer
Familiedrevet Fjellstue med tradisjonell overnatting i hytter og hotell - med en fokus på lokale råvarer i restuaranten.
Les mer
Midt i Vågåmo sentrum ligg Andre Etasje restaurant - omkransa av 5 nasjonalparkar - blant anna Jotunheimen, Rondane og Dovrefjell.
Les mer
Ureist lunsj og sagnomsust Skråpå tå setermeny
Les mer
Bli servert av Norges eneste baristabudeie!
Les mer